• Type
  • شقق
  • 2
  • Bedrooms
  • 2
  • Bathrooms
  • 102 sqft
  • Area Size
مبنى سكني في موقع مميز بالقرب من جميع المرافق في أفضل منطقة سياحية- لارنكا
  • €275,000

Description

مبنى سكني عصري بتصميم جميل للبيع، يقع على طريق ديكيليا، لارنكا، قبرص – على بُعد مسافة قصيرة سيرًا على الأقدام من شاطئ حاصل على شهادة العلم الأزرق. يتميز المشروع بموقع مثالي في منطقة سياحية سكنية سريعة النمو، ويوفر إمكانيات استثمارية ممتازة، ويحيط به العديد من المرافق، مما يجعله موقعًا جذابًا للمقيمين والمستثمرين على حد سواء.

فرصة استثمارية فريدة مع إمكانية شراء عقار للإيجار. تشهد المنطقة نموًا وتطورًا مستمرين، مما يجعلها وجهة مرغوبة بشكل متزايد للمشترين المحليين والدوليين. يجمع موقعها الاستراتيجي بين الراحة والترفيه وإمكانات قوية لزيادة رأس المال. يتكون المشروع من شقق عصرية بغرفة نوم واحدة أو غرفتين أو ثلاث غرف نوم، تتميز كل منها بموقف سيارات خاص مغطى. تضم شقتان في الطابق العلوي حدائق خاصة على السطح، مما يوفر تجربة معيشة خارجية راقية. توفر هذه الحدائق مساحة إضافية للاسترخاء والترفيه والاستمتاع بالطبيعة الخلابة.

موقع مميز في منطقة سكنية سياحية متطورة • ٣٠٠ متر من الشاطئ • قريب من المتاجر والمطاعم والمرافق المحلية • شقق عصرية بغرفة نوم واحدة أو غرفتين أو ثلاث غرف نوم • شقتان في الطابق العلوي مع حدائق خاصة على السطح، وغرفة إضافية، ومرحاض، ودش، بإطلالة بحرية • موقف سيارات خاص مغطى، وشاحن سيارة كهربائية • تصميم معماري عصري بتصاميم عملية • يوفر الخصوصية وسهولة الوصول إلى الشاطئ الرملي • على بُعد مسافة قصيرة سيرًا على الأقدام من شاطئ حاصل على العلم الأزرق وفندق  • سهولة الوصول إلى الطريق السريع (نيقوسيا، أيا نابا، ليماسول) • على بُعد ١٢ دقيقة فقط بالسيارة من مطار لارنكا الدولي

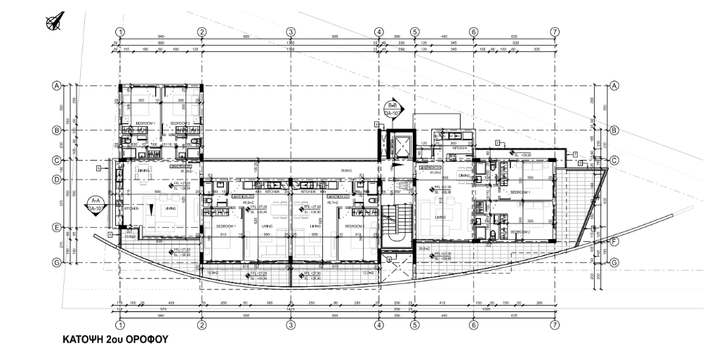
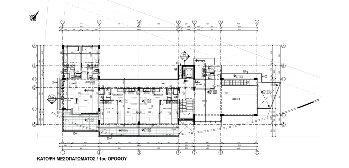
Floor Plans

Details

Updated on November 16, 2025 at 5:06 pm
  • Property ID newz-pal-101
  • Price €275,000
  • Property Size 102 sqft
  • Bedrooms 2
  • Bathrooms 2
  • Year Built 2025
  • Type شقق
  • Property Status للبيع
  • Address: لارنكا
  • City: لارنكا
  • Country: قبرص

0 Review

Sort by:
Leave a Review

Leave a Review

Compare listings

Compare